LA FABRICACIÓN DEL
INTERIOR
Shigeru Ban ver listado

El mueble como arquitectura #Shigeru Ban

Casa-mobiliario

El arquitecto japonés Shigeru Ban, laureado con el premio Pritzker en 2014, es generalmente conocido por el uso innovador del cartón como material estructural y por sus refugios para situaciones de emergencia.

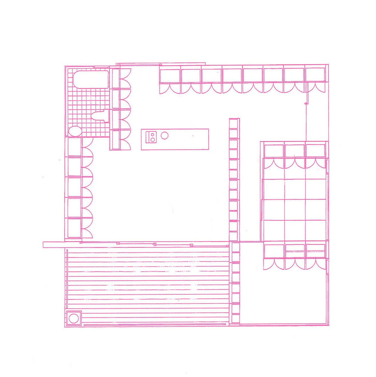
Ban es también autor del sistema estructural Casa Mobiliario, en el que el sistema de almacenaje modular asume también la función de la estructura -al soportar el peso de la cubierta- y la función de los tabiques, al organizar el interior de la vivienda de acuerdo a las necesidades de sus usuarios.

Ban usó este sistema por primera vez en la Casa Mobiliario en el lago Yamanaka (1996). Una casa de una planta, diáfana y abierta al exterior, en la que, a la manera de Mies, el mobiliario organiza y distribuye el espacio en lugar de los tabiques convencionales. Varias de las viviendas diseñadas por Ban usan este sistema estructural, como la Casa con una retícula de nueve cuadrados (1997) y la Casa Sagaponac en Long Island (2006). También se construyó un prototipo de vivienda con el mismo sistema estructural basado en el mobiliario producido por Muji para la exposición House Vision en 2013.

Otra de sus obras residenciales más singulares es la Casa Desnuda (1999-2000), donde los espacios, que por cuestiones de privacidad deben compartimentarse, se resuelven como piezas móviles que pueden situarse aleatoriamente dentro de una planta libre, es decir, como mobiliario. Los tres dormitorios son muebles que pueden desplazarse por la casa, conectándose a las redes que recorren el perímetro y permitiendo la máxima flexibilidad en la configuración del espacio interno.